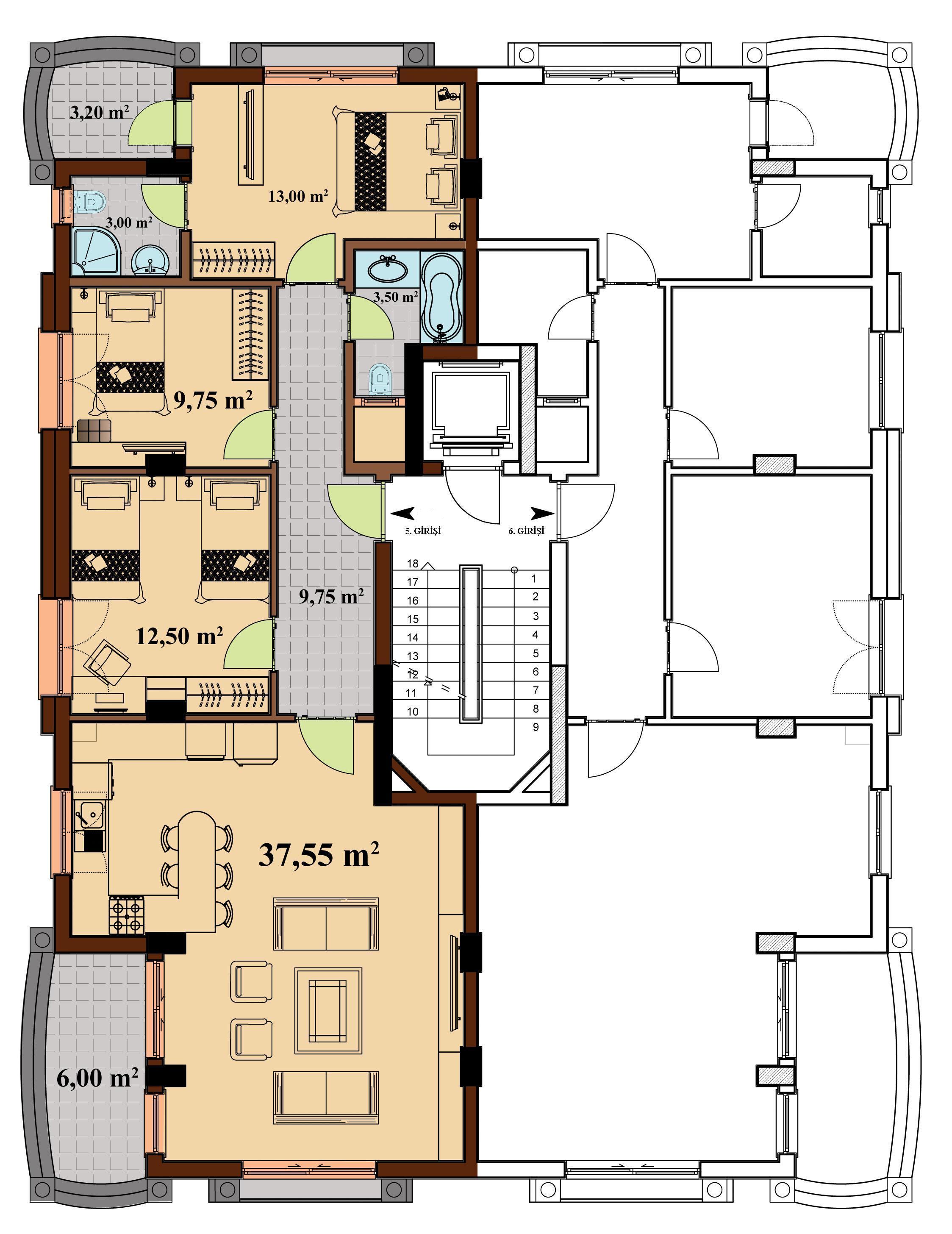
2. ETAP